Грибоедовский ЗАГС Москвы, описание

Всем привет! Меня зовут Сергей и я свадебный фотограф в Москве и Московской области.
В этой статье я покажу и расскажу вам про Грибоедовский ЗАГС Москвы, он же Дворец бракосочетания № 1. Находится Загс по адресу: Малый Харитоньевский переулок д 10, стр 1. Представляет собой старинный особняк построенный в 1909 году для купца А. В. Рериха.
Название унаследовал из советского времени, потому что улица, на которой он расположен когда то называлась Грибоедовская. В 90-х годах улице вернули историческое название, но в народе закрепилась привычка называть его Грибоедовским.
Свою работу он начал с 1961 года. Представляете сколько пар зарегистрировали брак в его стенах за более чем 60 летний срок!

За это время в нем успели зарегистрировать свои отношения и побывать известные личности, такие как:
- Валентина Терешкова и Андриян Николаев (свидетелем на их свадьбе был Юрий Гагарин)
- Владимир Высоцкий и Марина Влади
- Олег Табаков и Марина Зудина.
Из современников:
- Ксения Собчак и Константин Богомолов
- Ольга Бузова и Дмитрий Тарасов
- Владимир Пресняков и Наталья Подольская.
Кстати говоря, фотографии со многими знаменитостями, побывавшими в стенах данного загса, можно увидеть в одной из комнат. В общем, как вы поняли во все времена Дворец бракосочетания 1 пользуется особенной популярностью.

График работы и контакты Грибоедовского Загса
С 2019 года он перешел на ежедневный режим работы. А в летний период иногда доступны даже ночные регистрации (нововведение 2020 года). В основном они проводятся в ночь с субботы на воскресенье.
Кстати говоря, официального сайта у Грибоедовского ЗАГСа нет. Все контакты представлены в сервисе Мос.ру или будут доступны при подаче заявления через Госуслуги.
Актуальный график работы и общедоступную информацию о работе Дворца бракосочетания 1 можно узнать по ссылке ниже:
www.mos.ru/zags/function/dvorcybrakosochetaniya/dvorec-brakosochetaniya-1/

Где именно провести фотосессию в Грибоедовском ЗАГСе?
Снаружи Дворец бракосочетания № 1 кажется маленьким, но внутри будет доступно большое количество помещений. Все они выполнены в классическом стиле, но в разном цветовом исполнении. Практически во всех комнатах по потолку красивая лепнина, хрустальные люстры, на стенах пано, а в убранстве резная мебель. В общем, есть места и возможности для фотосессии как с гостями, так и отдельно.

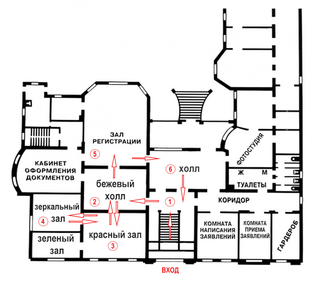
Всего в Грибоедовском ЗАГСе для молодожен открыто пять основных локаций в которых можно сделать отличные фото — это парадная лестница, бежевый холл, красный зал, зеленый зал, зеркальный (персиковый). А так же сам зал регистрации, но в нем не предоставляют время для постановочных фотографий, только репортажная съемка во время росписи. Правда на выходе из церемониального зала будет еще одна комната и в ней можно сделать пару отдельных или групповых фотографий, но время ограничено из-за постоянного потока брачующихся.
Итак, далее я попробую подробно описать вам процесс как происходит регистрация брака во Дворце бракосочетания 1, а так же где и когда можно сделать фотографии.

Дворец бракосочетания №1 — особенности фотосессии
Как только вы заходите в ЗАГС, то попадаете на парадную лестницу, где посетителей встречает сотрудник и сориентирует что делать дальше.
Именно с парадной лестницы многие фотографы начинают фотосъемку. Правда порой сделать постановочные кадры на ней тяжело из-за постоянного потока пар. Поэтому фотосессию на лестнице лучше не рассматривать как основную, а переместится в более свободный зал. Как только на лестнице поубавится посетителей, то можно устроить фотосессию на ней.
Тут я дам парам небольшой совет. Если вы ищете фотографа на регистрацию брака во Дворец бракосочетания 1, то лучше сразу выбирать такого фотографа, кто хорошо знаком с распорядком данного заведения и кто может в нем ориентироваться по ситуации. Кстати говоря, я снимал в этом Загсе уже много раз и, наверное, знаю уже каждый уголок. Так что если вам понравятся мои работы — обращайтесь)

После подъема по лестнице гостей направляют в зал ожидания, а пару на оформление документов.
Залов для ожидания два — бежевый и красный. Пока молодожены занимаются оформлением документов (что не очень долго), я рекомендую не терять время и переместиться с гостям именно в красный зал. Он идеально подходит для групповых портретов с гостями и для постановочной фотосессии пары. Все дело в том, что он больше всех остальных залов, а так же имеет естественное освещение. В нем смело можно фотографировать без вспышек и получить отличный результат. Плюс размеры зала позволяют сделать групповые снимки даже с очень большим количеством гостей.

Из красного зала можно перейти в зеркальный зал (иногда его называют комнатой невесты), и в зеленый зал (комната жениха). Зеркальный зал в целом неплох для индивидуальной фотосессии жениха с невестой, а вот для групповых фотографий не лучшее решение, потому что много зеркал и отражений на фоне.
В зеленую гостиную я вовсе не рекомендую заходить. На мой взгляд, цвет стен в ней не из самых идеальных (мне лично оно напоминает больничное), плюс помещение самое маленькое из всех, не развернуться. Поэтому лучше не терять не него времени.

Лучше походить по коридорам, в них будет хоть какая-то перспектива и возможность сделать более интересные кадры. Но тоже стоит смотреть по обстановке и количеству посетителей.
Времени для фотосессии будет примерно 15-20 минут, пока идет оформление и проверка документов, а также подготовка к торжественной регистрации.

Как проходит регистрация брака в Грибоедовском ЗАГСе
Когда документы подготовлены, то пару и гостей вызывают в торжественный зал на регистрацию брака. Сначала в зал заходят гости и пока они рассаживаются, пару инструктируют где встать, что делать и как перемещаться во время церемонии. Поэтому можете не беспокоится что делать — вам все подскажут. Ну, а если будут вопросы, то не стесняйтесь задавать их сотрудникам Грибоедовского Загса.

По вместимости церемониальный зал рассчитан примерно на 20 персон. Если у вас будет больше гостей, то те, кто не успел занять кресла могут разместиться вдоль стен. Администраторы ЗАГСа все подскажут.
Каких-то строгих ограничений по количеству гостей на регистрацию брака я не встречал. Сколько не приходило — всех впускали.

Сама регистрация проходит абсолютно стандартно и длится около 7-10 минут. Торжественный зал во Дворце бракосочетания № 1 симпатичный, в классическом стиле. Освещение в церемониальном зале смешанное, иногда преобладает искусственное, а иногда дневное из окон.
Свет в нем может немного меняться в зависимости от сезона года и от времени суток. Я снимал в этом Загсе в разное время года и дня, результат плюс минус одинаковый. Поэтому скажу что освещение хорошее.

Из плюшек отмечу, что в Грибоедовском ЗАГСе для молодоженов предусмотрена бесплатная живая музыка. И это может быть не только марш Мендельсона, но и другая музыка по выбору пары. Правда лучше заранее уточнять данный момент у сотрудников ЗАГСа.
В зависимости от сезона может быть какой-либо дополнительный декор: цветочные корзины, воздушные шары, тыквы, ель и т. д. Это однозначно приятный бонус, который вносит свою изюминку и атмосферу. Далеко не в каждом Загсе так трепетно относятся к дополнительному декору.

После церемонии молодожены и гости выходят в боковую дверь и попадают в очередной холл. В нем можно сделать пару фото, а далее путь только на выход. Вернуться в предыдущие локации если и получится, то с трудом, потому что в них будут другие пары.
Для наглядности я размещаю схему с залами и порядок перемещения по ЗАГСу.

По времени в Грибоедовском ЗАГСе уходит примерно один час на все про все. Поэтому при планировании свадебного дня учтите это.
Выход из Дворца бракосочетания № 1 заслуживает особого внимания, потому что тротуар узкий и все буквально «вываливаются» на проезжую часть.
Если фотографа не сбила машина, то считаем что церемония удалась =) Конечно, про сбитого фото это шутка, но места на выходе действительно мало. Тоже самое касается парковки. Она городская, платная и где-то на 10 машин (именно возле ЗАГСа). На соседних улицах так же есть платные места, если возле Загса не получилось припарковаться, то не беда — по близости найти место под машину можно.
А вот присесть и устроить фуршет с шампанским наврядли получится, поблизости нет ни лавочек, ни подходящего сквера. Точнее он есть прямо за Загсом, но распивать в нем не разрешают. За этом строго следят охранники.

Места для фотосессии рядом с Дворцом бракосочетания 1
Так как Грибоедовский Загс находится в старом районе Москвы, то неподалеку множество интересных зданий с красивой архитектурой. Поэтому после регистрации брака можно устроить «городскую фотосессию». В шаговой доступности находятся два великолепных здания это:
Дом съездов Наркомпроса — на фоне его сводов и на проезжей части дороги часто устраивают минифотосессии. Но обратите внимание на следующую локацию.
Городская усадьба Высоцких — эта локация поинтереснее предыдущей, потому что рядом с ней небольшой сквер, а сама усадьба напоминает европейский замок. На мой взгляд место неплохое.
Чистопрудный бульвар со сквером — если есть желание и время, то можно пройтись до него. Дорога пешим ходом займет минут 10-15.
Ротонда и небольшой дворик за самим Загсом. Пить шампанское и отмечать там торжество не разрешают, но зайти и сделать пару фотографий — без проблем.




Выводы о Грибоедовском ЗАГСе
У любого места есть свои плюсы и минусы, даже если мы говорим про Дворец бракосочетания 1 в Москве. Да, он обладает богатой историей, да в нем любят регистрировать свои отношения знаменитости, у него неплохой интерьер. Но есть еще и минусы в виде отсутствия парковки, неудачная организация зоны выхода из ЗАГСа, отсутствие поблизости сквера со скамейками, где можно устроить небольшой фуршет, выпить по бокалу шампанского. Поэтому при планировании свадьбы данные моменты надо учитывать. Ниже краткая сводка плюсов и минусов.
Плюсы:
— неплохой интерьер, есть где фотографироваться внутри
— хорошее освещение
— историческое место
Минусы:
— бывает людно
— нет в шаговой доступности мест, где можно устроить фуршет после росписи
— отсутствует бесплатная парковка
Мне, как фотографу, Дворец бракосочетания № 1 очень нравится. Я провел в нем уже множество фотосессий и могу смело рекомендовать его парам.

Выездные площадки Грибоедовского ЗАГСа
Так же стоить отметить, что через Грибоедовский загс Москвы вы можете забронировать одну из пяти прикреплённых к нему площадок для выездной регистрации брака. Про некоторые из них я уже писал обзоры, рекомендую почитать кликнув по названию. Вот эти площадки:
«Особняк «Роял» госпошлина — 350 р
«Парк-отель Даниловский» госпошина — 350 р
«Северный Речной вокзал» госпошлина — 350 р
«Метро «Маяковская» госпошлина — 350 р
«Бальный зал отеля Хилтон Ленинградская» госпошлина — 350 р
Площадки стали доступны в рамках проекта «Новые адреса счастья». Подробный список вы найдете в другой моей статье:
Новые адреса счастья полный список мест для регистрации брака в Москве

Ниже представлена фотосессия с регистрации брака в Грибоедовском ЗАГСе и видеообзор интерьера.
И кстати говоря, штатных фотографов в Грибоедовском ЗАГСе нет, так же как и во многих других Московских ЗАГСах, поэтому о фотографе и видеографе лучше позаботится заранее.
Стоимость моих услуг можно посмотреть в разделе «прайс на свадебную фотосъемку»
А если остались вопросы или вы хотели бы уточнить свободные даты, то обращайтесь в личку в ВК или Telegram
Ну а на этом у меня все. Всем приятной и легкой подготовки к свадьбе! Надеюсь, данный обзор на Дворец бракосочетания № 1 г. Москвы был полезен Вам.
Фотографии с регистрации брака в Грибоедовском ЗАГСе
Видеообзор интерьеров Грибоедовского ЗАГСа в Москве
СВАДЕБНЫЙ ФОТОГРАФ В МОСКВЕ И МОСКОВСКОЙ ОБЛАСТИ СЕРГЕЙ КИРЖАЕВ.
Для невест

Marriott Imperial Plaza Москва свадебная фотосессия в отеле

Регистрация брака в Сафиса (дом торжеств Safisa)

Регистрация брака в Great Hall Yakimanka: фото, особенности площадки

Выбираем оптимальное время для регистрации брака в ЗАГСе

Регистрация брака в усадьбе Васильчиковых (музей военной формы)

Регистрация брака в гостинице «Националь»

Дождь на свадьбе. Как подготовиться к капризам погоды.

Как выбрать отель для сборов?

Какой реквизит для фото взять на сборы, фотосессию, в ЗАГС?

Регистрация брака в Останкинской телебашне

Как сэкономить бюджет свадьбы?

Регистрация брака в ресторане Birds Москва сити

Не умеем позировать, что делать?






































